Клапан противопожарный лифтовой КДМ-2м/КДМ-3- ЛС
Подробное описание
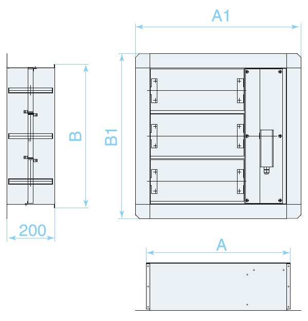
Противопожарный клапан КДМ-2м-ЛС по своему функциональному назначению применяется в системах вытяжной противодымной вентиляции в качестве дымового клапана аналогично клапану КДМ-2м. Противопожарный клапан КДМ-3-ЛС в режиме противопожарного нормально закрытого клапана, предназначен для систем вытяжной и приточной противодымной вентиляции, а также для систем удаления дыма и газов после пожара в помещениях, защищаемых установками газового, аэрозольного или порошкового пожаротушения аналогично клапану КДМ-3. Конструкция нормально закрытых клапанов и способы управления заслонкой аналогичны дымовым клапанам, отличие заключается в области применения и режимах сертификационных испытаний этих клапанов. В режиме дымового клапана КДМ-3-ЛС предназначен для установки в системы вытяжной противодымной вентиляции аналогично КДМ-2м-ЛС. Клапан КДМ-2м-ЛС, КДМ-3-ЛС изготавливается из оцинкованной стали. Особенностью клапана КДМ-2м/КДМ-3-ЛС является отсутствие вылета заслонки за пределы клапана за счет использования заслонки с несколькими створками связанных между собой системой тяг. Это позволяет монтировать клапан КДМ-2м/КДМ-3-ЛС в лифтовых шахтах, не препятстуя движению кабины лифта. Клапан КДМ-2м/КДМ-3-ЛС выпускается как в стеновом, так и в канальном исполнении. Устанавливается в вертикальных и горизонтальных проемах противодымной вентиляции, в перекрытиях, подвесных потолках и на ответвлениях воздуховодов. Клапан КДМ-2м/КДМ-3-ЛС работоспособен в любой пространственной ориентации. Клапан не подлежит установке в вентиляционных каналах помещений категории А и Б по взрывопожароопасности. Вид климатического исполнения и категория размещения У3 по ГОСТ 15150. Предельные значения рабочей температуры окружающего воздуха от –30°С до +40°С, при условии прямого воздействия атмосферных осадков.
Клапан комплектуется следующими типами приводов:
• электромеханический FS, FSN (UCP);
• электромеханический BLF (BFL), BLE (Belimo);
• электромагнитный (ЭМ).
Предел огнестойкости:
— КДМ-2м-ЛС — E90
— КДМ-3-ЛС — EI120

Технические характеристики и виды кассетного исполнения

Типоразмерный ряд и значения площади проходного сечения клапанов стенового исполнения с электромеханическим приводом, м²
| B, мм | A, мм | |||||||||||||||||
|---|---|---|---|---|---|---|---|---|---|---|---|---|---|---|---|---|---|---|
| 300 | 400 | 500 | 600 | 700 | 800 | 900 | 1000 | 1100 | 1200 | 1300 | 1400 | 1500 | 1600 | 1700 | 1800 | 1900 | 2000 | |
| 300 | 0,017 | 0,026 | 0,033 | 0,042 | 0,048 | 0,057 | 0,064 | 0,073 | 0,08 | 0,089 | 0,095 | 0,104 | 0,111 | 0,12 | 0,115 | 0,119 | 0,128 | 0,137 |
| 400 | 0,038 | 0,057 | 0,072 | 0,091 | 0,105 | 0,124 | 0,139 | 0,158 | 0,173 | 0,192 | 0,206 | 0,225 | 0,24 | 0,23 | 0,249 | 0,259 | 0,278 | 0,297 |
| 500 | 0,059 | 0,088 | 0,111 | 0,14 | 0,162 | 0,191 | 0,214 | 0,243 | 0,266 | 0,295 | 0,317 | 0,296 | 0,325 | 0,354 | 0,383 | 0,399 | 0,428 | 0,457 |
| 600 | 0,08 | 0,119 | 0,15 | 0,189 | 0,219 | 0,258 | 0,289 | 0,328 | 0,359 | 0,398 | 0,428 | 0,4 | 0,439 | 0,478 | 0,517 | 0,539 | 0,578 | 0,617 |
| 700 | 0,101 | 0,15 | 0,189 | 0,238 | 0,276 | 0,325 | 0,364 | 0,413 | 0,452 | 0,501 | 0,539 | 0,504 | 0,553 | 0,602 | 0,651 | 0,679 | 0,728 | 0,777 |
| 800 | 0,122 | 0,181 | 0,228 | 0,287 | 0,333 | 0,392 | 0,439 | 0,498 | 0,545 | 0,604 | 0,573 | 0,608 | 0,667 | 0,726 | 0,785 | 0,819 | 0,878 | 0,937 |
| 900 | 0,143 | 0,212 | 0,267 | 0,336 | 0,39 | 0,459 | 0,514 | 0,583 | 0,638 | 0,707 | 0,671 | 0,712 | 0,781 | 0,85 | 0,919 | 0,959 | 1,028 | 1,097 |
| 1000 | 0,164 | 0,243 | 0,306 | 0,385 | 0,447 | 0,526 | 0,589 | 0,668 | 0,731 | 0,81 | 0,769 | 0,816 | 0,895 | 0,974 | 1,053 | 1,099 | 1,178 | 1,257 |
| 1100 | 0,185 | 0,274 | 0,345 | 0,434 | 0,504 | 0,593 | 0,664 | 0,753 | 0,689 | 0,778 | 0,867 | 0,92 | 1,009 | 1,098 | 1,187 | 1,239 | 1,328 | 1,417 |
| 1200 | 0,206 | 0,305 | 0,384 | 0,483 | 0,561 | 0,66 | 0,739 | 0,838 | 0,767 | 0,866 | 0,965 | 1,024 | 1,123 | 1,222 | 1,321 | 1,379 | 1,478 | 1,577 |
| 1300 | 0,227 | 0,336 | 0,423 | 0,532 | 0,618 | 0,727 | 0,814 | 0,923 | 0,845 | 0,954 | 1,063 | 1,128 | 1,237 | 1,341 | 1,416 | 1,519 | 1,628 | 1,737 |
| 1400 | 0,248 | 0,367 | 0,462 | 0,581 | 0,675 | 0,794 | 0,889 | 1,008 | 0,923 | 1,042 | 1,161 | 1,232 | 1,351 | 1,47 | 1,589 | 1,659 | 1,778 | 1,897 |
| 1500 | 0,269 | 0,398 | 0,501 | 0,63 | 0,732 | 0,861 | 0,964 | 1,093 | 1,001 | 1,13 | 1,259 | 1,336 | 1,465 | 1,594 | 1,723 | 1,799 | 1,928 | 2,057 |
| 1600 | 0,29 | 0,429 | 0,54 | 0,679 | 0,789 | 0,928 | 1,039 | 0,94 | 1,079 | 1,218 | 1,357 | 1,44 | 1,579 | 1,718 | 1,857 | 1,939 | 2,078 | — |
| 1700 | 0,311 | 0,46 | 0,579 | 0,728 | 0,846 | 0,995 | 1,114 | 1,008 | 1,157 | 1,306 | 1,455 | 1,544 | 1,693 | 1,842 | 1,991 | 2,079 | 2,228 | — |
| 1800 | 0,332 | 0,491 | 0,618 | 0,777 | 0,903 | 1,062 | 1,189 | 1,076 | 1,235 | 1,394 | 1,553 | 1,648 | 1,807 | 1,966 | 2,125 | 2,219 | 2,378 | — |
| 1900 | 0,353 | 0,522 | 0,657 | 0,826 | 0,96 | 0,875 | 1,044 | 1,144 | 1,313 | 1,482 | 1,651 | 1,752 | 1,921 | 2,09 | — | — | — | — |
| 2000 | 0,374 | 0,553 | 0,696 | 0,875 | 1,017 | 0,927 | 1,106 | 1,212 | 1,391 | 1,57 | 1,749 | 1,856 | 2,035 | 2,214 | — | — | — | — |
Типоразмерный ряд и значения площади проходного сечения клапанов канального исполнения с электромеханическим приводом, м²
| B, мм | A, мм | |||||||||||||||||
|---|---|---|---|---|---|---|---|---|---|---|---|---|---|---|---|---|---|---|
| 300 | 400 | 500 | 600 | 700 | 800 | 900 | 1000 | 1100 | 1200 | 1300 | 1400 | 1500 | 1600 | 1700 | 1800 | 1900 | 2000 | |
| 300 | 0,055 | 0,082 | 0,103 | 0,13 | 0,151 | 0,178 | 0,199 | 0,226 | 0,247 | 0,274 | 0,295 | 0,322 | 0,343 | 0,37 | 0,356 | 0,371 | 0,398 | 0,425 |
| 400 | 0,076 | 0,113 | 0,142 | 0,179 | 0,208 | 0,245 | 0,274 | 0,311 | 0,34 | 0,377 | 0,406 | 0,443 | 0,472 | 0,453 | 0,49 | 0,511 | 0,548 | 0,585 |
| 500 | 0,097 | 0,144 | 0,181 | 0,228 | 0,265 | 0,312 | 0,349 | 0,396 | 0,433 | 0,48 | 0,517 | 0,483 | 0,53 | 0,577 | 0,624 | 0,651 | 0,698 | 0,745 |
| 600 | 0,118 | 0,175 | 0,22 | 0,277 | 0,322 | 0,379 | 0,424 | 0,481 | 0,526 | 0,583 | 0,628 | 0,587 | 0,644 | 0,701 | 0,758 | 0,791 | 0,848 | 0,905 |
| 700 | 0,139 | 0,206 | 0,259 | 0,326 | 0,379 | 0,446 | 0,499 | 0,566 | 0,619 | 0,686 | 0,739 | 0,691 | 0,758 | 0,825 | 0,892 | 0,931 | 0,998 | 1,065 |
| 800 | 0,16 | 0,237 | 0,298 | 0,375 | 0,436 | 0,513 | 0,574 | 0,651 | 0,712 | 0,789 | 0,75 | 0,795 | 0,872 | 0,949 | 1,026 | 1,071 | 1,148 | 1,225 |
| 900 | 0,181 | 0,268 | 0,337 | 0,424 | 0,493 | 0,58 | 0,649 | 0,736 | 0,805 | 0,892 | 0,848 | 0,899 | 0,986 | 1,073 | 1,16 | 1,211 | 1,298 | 1,385 |
| 1000 | 0,202 | 0,299 | 0,376 | 0,476 | 0,555 | 0,641 | 0,724 | 0,821 | 0,898 | 0,995 | 0,946 | 1,003 | 1,1 | 1,197 | 1,294 | 1,351 | 1,448 | 1,545 |
| 1100 | 0,223 | 0,33 | 0,415 | 0,522 | 0,607 | 0,714 | 0,799 | 0,906 | 0,83 | 0,937 | 1,044 | 1,107 | 1,214 | 1,321 | 1,428 | 1,491 | 1,598 | 1,705 |
| 1200 | 0,244 | 0,361 | 0,454 | 0,571 | 0,664 | 0,781 | 0,874 | 0,991 | 0,908 | 1,025 | 1,142 | 1,211 | 1,328 | 1,445 | 1,562 | 1,631 | 1,748 | 1,865 |
| 1300 | 0,265 | 0,392 | 0,493 | 0,62 | 0,721 | 0,848 | 0,949 | 1,076 | 0,986 | 1,113 | 1,24 | 1,315 | 1,44 | 1,561 | 1,686 | 1,771 | 1,898 | 2,025 |
| 1400 | 0,286 | 0,423 | 0,532 | 0,669 | 0,778 | 0,915 | 1,024 | 1,161 | 1,064 | 1,201 | 1,338 | 1,419 | 1,556 | 1,693 | 1,83 | 1,911 | 2,048 | 2,185 |
| 1500 | 0,307 | 0,454 | 0,571 | 0,718 | 0,835 | 0,982 | 1,099 | 1,246 | 1,142 | 1,289 | 1,436 | 1,523 | 1,67 | 1,817 | 1,964 | 2,051 | 2,198 | 2,345 |
| 1600 | 0,328 | 0,485 | 0,61 | 0,767 | 0,892 | 1,049 | 1,174 | 1,063 | 1,22 | 1,377 | 1,534 | 1,627 | 1,784 | 1,941 | 2,098 | 2,191 | 2,348 | — |
| 1700 | 0,349 | 0,516 | 0,649 | 0,816 | 0,949 | 1,116 | 1,249 | 1,131 | 1,298 | 1,465 | 1,632 | 1,731 | 1,898 | 2,065 | 2,232 | 2,331 | 2,498 | — |
| 1800 | 0,37 | 0,547 | 0,688 | 0,865 | 1,006 | 1,183 | 1,324 | 1,199 | 1,376 | 1,553 | 1,73 | 1,835 | 2,012 | 2,189 | 2,366 | 2,471 | 2,648 | — |
| 1900 | 0,391 | 0,578 | 0,727 | 0,914 | 1,063 | 0,969 | 1,156 | 1,267 | 1,454 | 1,641 | 1,828 | 1,939 | 2,126 | 2,313 | — | — | — | — |
| 2000 | 0,412 | 0,609 | 0,766 | 0,963 | 1,12 | 1,021 | 1,218 | 1,335 | 1,532 | 1,729 | 1,926 | 2,043 | 2,24 | 2,437 | — | — | — | — |
Типоразмерный ряд и значения площади проходного сечения клапанов стенового исполнения с электромагнитным приводом, м²
| B, мм | A, мм | |||||||||||||||||
|---|---|---|---|---|---|---|---|---|---|---|---|---|---|---|---|---|---|---|
| 300 | 400 | 500 | 600 | 700 | 800 | 900 | 1000 | 1100 | 1200 | 1300 | 1400 | 1500 | 1600 | 1700 | 1800 | 1900 | 2000 | |
| 300 | 0,017 | 0,026 | 0,033 | 0,042 | 0,048 | 0,057 | 0,064 | 0,073 | 0,08 | 0,089 | 0,083 | 0,088 | 0,097 | 0,106 | 0,115 | 0,119 | 0,128 | 0,137 |
| 400 | 0,038 | 0,057 | 0,072 | 0,091 | 0,105 | 0,124 | 0,139 | 0,158 | 0,173 | 0,192 | 0,181 | 0,192 | 0,211 | 0,23 | 0,249 | 0,259 | 0,278 | 0,297 |
| 500 | 0,059 | 0,088 | 0,111 | 0,14 | 0,162 | 0,191 | 0,214 | 0,243 | 0,266 | 0,295 | 0,279 | 0,296 | 0,325 | 0,354 | 0,383 | 0,399 | 0,428 | 0,457 |
| 600 | 0,08 | 0,119 | 0,15 | 0,189 | 0,219 | 0,258 | 0,289 | 0,328 | 0,359 | 0,398 | 0,377 | 0,4 | 0,439 | 0,478 | 0,517 | 0,539 | 0,578 | 0,617 |
| 700 | 0,101 | 0,15 | 0,189 | 0,238 | 0,276 | 0,325 | 0,364 | 0,413 | 0,452 | 0,501 | 0,475 | 0,504 | 0,553 | 0,602 | 0,651 | 0,679 | 0,728 | 0,777 |
| 800 | 0,122 | 0,181 | 0,228 | 0,287 | 0,333 | 0,392 | 0,439 | 0,498 | 0,545 | 0,604 | 0,573 | 0,608 | 0,667 | 0,726 | 0,785 | 0,819 | 0,878 | 0,937 |
| 900 | 0,143 | 0,212 | 0,267 | 0,336 | 0,39 | 0,459 | 0,514 | 0,583 | 0,638 | 0,707 | 0,671 | 0,712 | 0,781 | 0,85 | 0,919 | 0,959 | 1,028 | 1,097 |
| 1000 | 0,164 | 0,243 | 0,306 | 0,385 | 0,447 | 0,526 | 0,589 | 0,668 | 0,731 | 0,81 | 0,769 | 0,816 | 0,895 | 0,974 | 1,053 | 1,099 | 1,178 | 1,257 |
| 1100 | 0,185 | 0,274 | 0,345 | 0,434 | 0,504 | 0,593 | 0,664 | 0,753 | 0,689 | 0,778 | 0,867 | 0,92 | 1,009 | 1,098 | 1,187 | 1,239 | 1,328 | 1,417 |
| 1200 | 0,206 | 0,305 | 0,384 | 0,483 | 0,561 | 0,66 | 0,739 | 0,838 | 0,767 | 0,866 | 0,965 | 1,024 | 1,123 | 1,222 | 1,321 | 1,379 | 1,478 | 1,577 |
| 1300 | 0,227 | 0,336 | 0,423 | 0,532 | 0,618 | 0,727 | 0,814 | 0,923 | 0,845 | 0,954 | 1,063 | 1,128 | 1,237 | 1,341 | 1,416 | 1,519 | 1,628 | 1,737 |
| 1400 | 0,248 | 0,367 | 0,462 | 0,581 | 0,675 | 0,794 | 0,889 | 1,008 | 0,923 | 1,042 | 1,161 | 1,232 | 1,351 | 1,47 | 1,589 | 1,659 | 1,778 | 1,897 |
| 1500 | 0,269 | 0,398 | 0,501 | 0,63 | 0,732 | 0,861 | 0,964 | 1,093 | 1,001 | 1,13 | 1,259 | 1,336 | 1,465 | 1,594 | 1,723 | 1,799 | 1,928 | 2,057 |
| 1600 | 0,29 | 0,429 | 0,54 | 0,679 | 0,789 | 0,928 | 1,039 | 0,94 | 1,079 | 1,218 | 1,357 | 1,44 | 1,579 | 1,718 | 1,857 | 1,939 | 2,078 | — |
| 1700 | 0,311 | 0,46 | 0,579 | 0,728 | 0,846 | 0,995 | 1,114 | 1,008 | 1,157 | 1,306 | 1,455 | 1,544 | 1,693 | 1,842 | 1,991 | 2,079 | 2,228 | — |
| 1800 | 0,332 | 0,491 | 0,618 | 0,777 | 0,903 | 1,062 | 1,189 | 1,076 | 1,235 | 1,394 | 1,553 | 1,648 | 1,807 | 1,966 | 2,125 | 2,219 | 2,378 | — |
| 1900 | 0,353 | 0,522 | 0,657 | 0,826 | 0,96 | 0,875 | 1,044 | 1,144 | 1,313 | 1,482 | 1,651 | 1,752 | 1,921 | 2,09 | — | — | — | — |
| 2000 | 0,374 | 0,553 | 0,696 | 0,875 | 1,017 | 0,927 | 1,106 | 1,212 | 1,391 | 1,57 | 1,749 | 1,856 | 2,035 | 2,214 | — | — | — | — |
Типоразмерный ряд и значения площади проходного сечения клапанов канального исполнения с электромагнитным приводом, м²
| A, мм | B, мм | |||||||||||||||||
|---|---|---|---|---|---|---|---|---|---|---|---|---|---|---|---|---|---|---|
| 300 | 400 | 500 | 600 | 700 | 800 | 900 | 1000 | 1100 | 1200 | 1300 | 1400 | 1500 | 1600 | 1700 | 1800 | 1900 | 2000 | |
| 300 | 0,055 | 0,082 | 0,103 | 0,13 | 0,151 | 0,178 | 0,199 | 0,226 | 0,247 | 0,274 | 0,26 | 0,275 | 0,302 | 0,329 | 0,356 | 0,371 | 0,398 | 0,425 |
| 400 | 0,076 | 0,113 | 0,142 | 0,179 | 0,208 | 0,245 | 0,274 | 0,311 | 0,34 | 0,377 | 0,358 | 0,372 | 0,416 | 0,453 | 0,49 | 0,511 | 0,548 | 0,585 |
| 500 | 0,097 | 0,144 | 0,181 | 0,228 | 0,265 | 0,312 | 0,349 | 0,396 | 0,433 | 0,48 | 0,456 | 0,483 | 0,53 | 0,577 | 0,624 | 0,651 | 0,698 | 0,745 |
| 600 | 0,118 | 0,175 | 0,22 | 0,277 | 0,322 | 0,379 | 0,424 | 0,481 | 0,526 | 0,583 | 0,554 | 0,587 | 0,644 | 0,701 | 0,758 | 0,791 | 0,848 | 0,905 |
| 700 | 0,139 | 0,206 | 0,259 | 0,326 | 0,379 | 0,446 | 0,499 | 0,566 | 0,619 | 0,686 | 0,652 | 0,691 | 0,758 | 0,825 | 0,892 | 0,931 | 0,998 | 1,065 |
| 800 | 0,16 | 0,237 | 0,298 | 0,375 | 0,436 | 0,513 | 0,574 | 0,651 | 0,712 | 0,789 | 0,75 | 0,795 | 0,872 | 0,949 | 1,026 | 1,071 | 1,148 | 1,225 |
| 900 | 0,181 | 0,268 | 0,337 | 0,424 | 0,493 | 0,58 | 0,649 | 0,736 | 0,805 | 0,892 | 0,848 | 0,899 | 0,986 | 1,073 | 1,16 | 1,211 | 1,298 | 1,385 |
| 1000 | 0,202 | 0,299 | 0,376 | 0,476 | 0,555 | 0,641 | 0,724 | 0,821 | 0,898 | 0,995 | 0,946 | 1,003 | 1,1 | 1,197 | 1,294 | 1,351 | 1,448 | 1,545 |
| 1100 | 0,223 | 0,33 | 0,415 | 0,522 | 0,607 | 0,714 | 0,799 | 0,906 | 0,83 | 0,937 | 1,044 | 1,107 | 1,214 | 1,321 | 1,428 | 1,491 | 1,598 | 1,705 |
| 1200 | 0,244 | 0,361 | 0,454 | 0,571 | 0,664 | 0,781 | 0,874 | 0,991 | 0,908 | 1,025 | 1,142 | 1,211 | 1,328 | 1,445 | 1,562 | 1,631 | 1,748 | 1,865 |
| 1300 | 0,265 | 0,392 | 0,493 | 0,62 | 0,721 | 0,848 | 0,949 | 1,076 | 0,986 | 1,113 | 1,24 | 1,315 | 1,44 | 1,561 | 1,686 | 1,771 | 1,898 | 2,025 |
| 1400 | 0,286 | 0,423 | 0,532 | 0,669 | 0,778 | 0,915 | 1,024 | 1,161 | 1,064 | 1,201 | 1,338 | 1,419 | 1,556 | 1,693 | 1,83 | 1,911 | 2,048 | 2,185 |
| 1500 | 0,307 | 0,454 | 0,571 | 0,718 | 0,835 | 0,982 | 1,099 | 1,246 | 1,142 | 1,289 | 1,436 | 1,523 | 1,67 | 1,817 | 1,964 | 2,051 | 2,198 | 2,345 |
| 1600 | 0,328 | 0,485 | 0,61 | 0,767 | 0,892 | 1,049 | 1,174 | 1,063 | 1,22 | 1,377 | 1,534 | 1,627 | 1,784 | 1,941 | 2,098 | 2,191 | 2,348 | — |
| 1700 | 0,349 | 0,516 | 0,649 | 0,816 | 0,949 | 1,116 | 1,249 | 1,131 | 1,298 | 1,465 | 1,632 | 1,731 | 1,898 | 2,065 | 2,232 | 2,331 | 2,498 | — |
| 1800 | 2,498 | 0,547 | 0,688 | 0,865 | 1,006 | 1,183 | 1,324 | 1,199 | 1,376 | 1,553 | 1,73 | 1,835 | 2,012 | 2,189 | 2,366 | 2,471 | 2,648 | — |
| 1900 | 0,391 | 0,578 | 0,727 | 0,914 | 1,063 | 0,969 | 1,156 | 1,267 | 1,454 | 1,641 | 1,828 | 1,939 | 2,126 | 2,313 | — | — | — | — |
| 2000 | 0,412 | 0,609 | 0,766 | 0,963 | 1,12 | 1,021 | 1,218 | 1,335 | 1,532 | 1,729 | 1,926 | 2,043 | 2,24 | 2,437 | — | — | — | — |
Масса клапанов КДМ-2м-ЛС с электромеханическим приводом, кг
| A, мм | B, мм | |||||||||||||||||
|---|---|---|---|---|---|---|---|---|---|---|---|---|---|---|---|---|---|---|
| 300 | 400 | 500 | 600 | 700 | 800 | 900 | 1000 | 1100 | 1200 | 1300 | 1400 | 1500 | 1600 | 1700 | 1800 | 1900 | 2000 | |
| 300 | 13,4 | 14,9 | 16,6 | 18,1 | 19,7 | 21,2 | 22,9 | 24,4 | 26 | 27,5 | 29,1 | 30,6 | 32,3 | 33,8 | 42,4 | 44,2 | 45,7 | 47,2 |
| 400 | 14,5 | 16,1 | 18 | 19,6 | 21,4 | 23,1 | 24,9 | 26,5 | 28,3 | 30 | 31,8 | 33,4 | 35,2 | 44,5 | 46,1 | 48,1 | 49,7 | 51,4 |
| 500 | 15,6 | 17,5 | 19,5 | 21,3 | 23,3 | 25,2 | 27,2 | 29 | 31 | 32,9 | 34,9 | 44,8 | 46,7 | 48,5 | 50,4 | 52,5 | 54,4 | 56,2 |
| 600 | 16,6 | 19 | 21,2 | 23,3 | 25,6 | 27,6 | 29,9 | 31,9 | 34,2 | 36,3 | 38,5 | 49 | 51,1 | 53,2 | 55,3 | 57,7 | 59,7 | 61,8 |
| 700 | 17,7 | 20,2 | 22,6 | 24,8 | 27,2 | 29,5 | 31,9 | 34,1 | 36,5 | 38,7 | 41,1 | 52,3 | 54,5 | 56,7 | 59 | 61,5 | 63,7 | 66 |
| 800 | 18,7 | 21,4 | 24 | 26,4 | 28,9 | 31,3 | 33,9 | 36,3 | 38,8 | 41,2 | 52,8 | 55,5 | 57,9 | 60,2 | 62,6 | 65,3 | 67,7 | 70,1 |
| 900 | 19,8 | 22,7 | 25,4 | 27,9 | 30,6 | 33,2 | 35,9 | 38,4 | 41,1 | 43,7 | 55,8 | 58,7 | 61,2 | 63,8 | 66,3 | 69,2 | 71,7 | 74,3 |
| 1000 | 20,9 | 23,9 | 26,7 | 29,4 | 32,8 | 35 | 37,9 | 40,6 | 43,4 | 46,1 | 58,9 | 61,9 | 64,6 | 67,3 | 70 | 73 | 75,7 | 78,5 |
| 1100 | 21,9 | 25,1 | 28,1 | 31 | 34 | 36,9 | 39,9 | 42,7 | 56,2 | 59,1 | 61,9 | 65,1 | 68 | 70,8 | 73,7 | 76,9 | 79,8 | 82,6 |
| 1200 | 23 | 26,3 | 29,5 | 32,5 | 35,7 | 38,7 | 41,9 | 44,9 | 59 | 62 | 65 | 68,3 | 71,4 | 74,4 | 77,4 | 80,7 | 83,8 | 86,8 |
| 1300 | 24 | 27,5 | 30,9 | 34 | 37,4 | 40,5 | 43,9 | 47,1 | 61,7 | 64,9 | 68,1 | 71,6 | 74,7 | 77,6 | 80,1 | 84,6 | 87,8 | 90,9 |
| 1400 | 25,1 | 25,1 | 32,2 | 35,6 | 39,1 | 42,4 | 45,9 | 49,2 | 64,5 | 67,8 | 71,1 | 74,8 | 78,1 | 81,4 | 84,8 | 88,4 | 91,8 | 95,1 |
| 1500 | 26,2 | 30 | 33,6 | 37,1 | 40,7 | 44,2 | 47,9 | 51,4 | 67,2 | 70,7 | 74,2 | 78 | 81,5 | 85 | 88,5 | 92,3 | 95,8 | 99,3 |
| 1600 | 27,2 | 31,2 | 35 | 38,6 | 42,4 | 46,1 | 49,9 | 66,3 | 70 | 73,6 | 77,3 | 81,2 | 84,9 | 88,5 | 92,2 | 96,1 | 99,8 | — |
| 1700 | 28,3 | 32,4 | 36,4 | 40,2 | 44,1 | 47,9 | 51,9 | 68,9 | 72,7 | 76,5 | 80,3 | 84,4 | 88,2 | 92 | 95,8 | 100 | 103,8 | — |
| 1800 | 29,3 | 33,6 | 37,7 | 41,7 | 45,8 | 49,8 | 53,9 | 71,5 | 75,5 | 79,4 | 83,4 | 87,7 | 91,6 | 95,6 | 99,5 | 103,8 | 107,8 | — |
| 1900 | 30,4 | 34,8 | 39,1 | 43,2 | 47,5 | 65,5 | 69,6 | 74,1 | 78,2 | 82,3 | 86,4 | 90,9 | 95 | 99,1 | — | — | — | — |
| 2000 | 31,5 | 36 | 40,5 | 44,7 | 49,2 | 67,8 | 72,1 | 76,7 | 81 | 85,2 | 89,5 | 94,1 | 98,4 | 102,6 | — | — | — | — |
Масса клапанов КДМ-2м-ЛС с электромагнитным приводом, кг
| A, мм | B, мм | |||||||||||||||||
|---|---|---|---|---|---|---|---|---|---|---|---|---|---|---|---|---|---|---|
| 300 | 400 | 500 | 600 | 700 | 800 | 900 | 1000 | 1100 | 1200 | 1300 | 1400 | 1500 | 1600 | 1700 | 1800 | 1900 | 2000 | |
| 300 | 13,4 | 14,9 | 16,6 | 18,1 | 19,7 | 21,2 | 22,9 | 24,4 | 26 | 27,5 | 29,1 | 30,6 | 32,3 | 33,8 | 42,4 | 44,2 | 45,7 | 47,2 |
| 400 | 14,5 | 16,1 | 18 | 19,6 | 21,4 | 23,1 | 24,9 | 26,5 | 28,3 | 30 | 31,8 | 33,4 | 35,2 | 44,5 | 46,1 | 48,1 | 49,7 | 51,4 |
| 500 | 15,6 | 17,5 | 19,5 | 21,3 | 23,3 | 25,2 | 27,2 | 29 | 31 | 32,9 | 34,9 | 44,8 | 46,7 | 48,5 | 50,4 | 52,5 | 54,4 | 56,2 |
| 600 | 16,6 | 19 | 21,2 | 23,3 | 25,6 | 27,6 | 29,9 | 31,9 | 34,2 | 36,3 | 38,5 | 49 | 51,1 | 53,2 | 55,3 | 57,7 | 59,7 | 61,8 |
| 700 | 17,7 | 20,2 | 22,6 | 24,8 | 27,2 | 29,5 | 31,9 | 34,1 | 36,5 | 38,7 | 41,1 | 52,3 | 54,5 | 56,7 | 59 | 61,5 | 63,7 | 66 |
| 800 | 18,7 | 21,4 | 24 | 26,4 | 28,9 | 31,3 | 33,9 | 36,3 | 38,8 | 41,2 | 52,8 | 55,5 | 57,9 | 60,2 | 62,6 | 65,3 | 67,7 | 70,1 |
| 900 | 19,8 | 22,7 | 25,4 | 27,9 | 30,6 | 33,2 | 35,9 | 38,4 | 41,1 | 43,7 | 55,8 | 58,7 | 61,2 | 63,8 | 66,3 | 69,2 | 71,7 | 74,3 |
| 1000 | 20,9 | 23,9 | 26,7 | 29,4 | 32,8 | 35 | 37,9 | 40,6 | 43,4 | 46,1 | 58,9 | 61,9 | 64,6 | 67,3 | 70 | 73 | 75,7 | 78,5 |
| 1100 | 21,9 | 25,1 | 28,1 | 31 | 34 | 36,9 | 39,9 | 42,7 | 56,2 | 59,1 | 61,9 | 65,1 | 68 | 70,8 | 73,7 | 76,9 | 79,8 | 82,6 |
| 1200 | 23 | 26,3 | 29,5 | 32,5 | 35,7 | 38,7 | 41,9 | 44,9 | 59 | 62 | 65 | 68,3 | 71,4 | 74,4 | 77,4 | 80,7 | 83,8 | 86,8 |
| 1300 | 24 | 27,5 | 30,9 | 34 | 37,4 | 40,5 | 43,9 | 47,1 | 61,7 | 64,9 | 68,1 | 71,6 | 74,7 | 77,6 | 80,1 | 84,6 | 87,8 | 90,9 |
| 1400 | 25,1 | 25,1 | 32,2 | 35,6 | 39,1 | 42,4 | 45,9 | 49,2 | 64,5 | 67,8 | 71,1 | 74,8 | 78,1 | 81,4 | 84,8 | 88,4 | 91,8 | 95,1 |
| 1500 | 26,2 | 30 | 33,6 | 37,1 | 40,7 | 44,2 | 47,9 | 51,4 | 67,2 | 70,7 | 74,2 | 78 | 81,5 | 85 | 88,5 | 92,3 | 95,8 | 99,3 |
| 1600 | 27,2 | 31,2 | 35 | 38,6 | 42,4 | 46,1 | 49,9 | 66,3 | 70 | 73,6 | 77,3 | 81,2 | 84,9 | 88,5 | 92,2 | 96,1 | 99,8 | — |
| 1700 | 28,3 | 32,4 | 36,4 | 40,2 | 44,1 | 47,9 | 51,9 | 68,9 | 72,7 | 76,5 | 80,3 | 84,4 | 88,2 | 92 | 95,8 | 100 | 103,8 | — |
| 1800 | 29,3 | 33,6 | 37,7 | 41,7 | 45,8 | 49,8 | 53,9 | 71,5 | 75,5 | 79,4 | 83,4 | 87,7 | 91,6 | 95,6 | 99,5 | 103,8 | 107,8 | — |
| 1900 | 30,4 | 34,8 | 39,1 | 43,2 | 47,5 | 65,5 | 69,6 | 74,1 | 78,2 | 82,3 | 86,4 | 90,9 | 95 | 99,1 | — | — | — | — |
| 2000 | 31,5 | 36 | 40,5 | 44,7 | 49,2 | 67,8 | 72,1 | 76,7 | 81 | 85,2 | 89,5 | 94,1 | 98,4 | 102,6 | — | — | — | — |
Масса клапанов КДМ-3-ЛС с электромагнитным приводом, кг
| A, мм | B, мм | |||||||||||||||||
|---|---|---|---|---|---|---|---|---|---|---|---|---|---|---|---|---|---|---|
| 300 | 400 | 500 | 600 | 700 | 800 | 900 | 1000 | 1100 | 1200 | 1300 | 1400 | 1500 | 1600 | 1700 | 1800 | 1900 | 2000 | |
| 300 | 14 | 15,6 | 17,5 | 19,2 | 21 | 22,7 | 24,5 | 26,2 | 28,1 | 29,7 | 31,6 | 33,3 | 35,1 | 36,8 | 45,4 | 47,4 | 49,1 | 50,8 |
| 400 | 15,5 | 17,5 | 19,6 | 21,6 | 23,8 | 25,8 | 27,9 | 29,9 | 32,1 | 34,1 | 36,2 | 38,2 | 40,4 | 49,5 | 51,5 | 53,9 | 55,9 | 57,9 |
| 500 | 16,9 | 19,4 | 21,9 | 24,3 | 26,8 | 29,1 | 31,6 | 34 | 36,5 | 38,9 | 41,4 | 51,2 | 53,5 | 55,9 | 58,2 | 60,9 | 63,3 | 65,6 |
| 600 | 18,4 | 21,5 | 24,4 | 27,1 | 30,1 | 32,8 | 35,7 | 38,5 | 41,4 | 44,1 | 47 | 57,4 | 60,1 | 62,9 | 65,6 | 68,7 | 71,4 | 74,2 |
| 700 | 19,9 | 23,3 | 26,5 | 29,6 | 32,8 | 35,9 | 39,1 | 42,2 | 45,4 | 48,5 | 51,7 | 62,6 | 65,6 | 68,7 | 71,8 | 75,1 | 78,2 | 81,3 |
| 800 | 21,4 | 25,1 | 28,7 | 32 | 35,6 | 39 | 42,5 | 45,9 | 49,4 | 52,8 | 64,1 | 67,8 | 71,2 | 74,5 | 77,9 | 81,6 | 85 | 88,4 |
| 900 | 22,9 | 26,9 | 30,8 | 34,5 | 38,3 | 42 | 45,9 | 49,6 | 53,5 | 57,2 | 69 | 73 | 76,7 | 80,4 | 84,1 | 88,1 | 91,8 | 95,5 |
| 1000 | 24,4 | 28,7 | 32,9 | 36,9 | 41,1 | 45,1 | 49,3 | 53,3 | 57,5 | 61,5 | 73,8 | 78,2 | 82,2 | 86,2 | 90,2 | 94,6 | 98,6 | 102,6 |
| 1100 | 25,9 | 30,5 | 35 | 39,4 | 43,9 | 48,2 | 52,7 | 57 | 70,1 | 74,4 | 78,7 | 83,4 | 87,7 | 92 | 96,4 | 101 | 105,4 | 109,7 |
| 1200 | 27,4 | 32,3 | 37,2 | 41,8 | 46,6 | 51,3 | 56,1 | 60,7 | 74,3 | 79 | 83,6 | 88,6 | 93,2 | 97,9 | 102,5 | 107,5 | 112,2 | 116,8 |
| 1300 | 28,9 | 34,2 | 39,3 | 44,2 | 49,4 | 54,3 | 59,5 | 64,4 | 78,6 | 83,5 | 88,5 | 93,8 | 98,8 | 103,7 | 108,1 | 114,2 | 118,9 | 123,9 |
| 1400 | 30,4 | 36 | 41,4 | 46,7 | 52,1 | 57,4 | 62,9 | 68,1 | 82,8 | 88,1 | 93,4 | 99 | 104,3 | 109,6 | 114,8 | 120,4 | 125,7 | 131 |
| 1500 | 31,9 | 37,8 | 43,5 | 49,1 | 54,9 | 60,5 | 66,3 | 71,9 | 87,1 | 92,7 | 98,3 | 104,2 | 109,8 | 115,4 | 121 | 126,9 | 132,5 | 138,1 |
| 1600 | 33,4 | 39,6 | 45,7 | 51,6 | 57,7 | 63,6 | 69,7 | 85,4 | 91,3 | 97,2 | 103,2 | 109,4 | 115,3 | 121,2 | 127,1 | 133,4 | 139,3 | — |
| 1700 | 34,8 | 41,4 | 47,8 | 54 | 60,4 | 66,6 | 73 | 89,3 | 95,6 | 101,8 | 108 | 114,6 | 120,8 | 127,1 | 133,3 | 139,9 | 146,1 | — |
| 1800 | 36,3 | 43,2 | 49,9 | 56,5 | 63,2 | 69,7 | 76,4 | 93,3 | 99,8 | 106,4 | 112,9 | 119,8 | 126,3 | 132,9 | 139,5 | 146,3 | 152,9 | — |
| 1900 | 37,8 | 45 | 52 | 58,9 | 65,9 | 83,1 | 90 | 97,2 | 104,1 | 110,9 | 117,8 | 125 | 131,9 | 138,7 | — | — | — | — |
| 2000 | 39,3 | 46,8 | 54,2 | 61,3 | 68,7 | 86,4 | 93,6 | 101,1 | 108,3 | 115,5 | 122,7 | 130,2 | 137,4 | 144,6 | — | — | — | — |
Масса клапанов КДМ-3-ЛС с электромеханическим приводом, кг
| A, мм | B, мм | |||||||||||||||||
|---|---|---|---|---|---|---|---|---|---|---|---|---|---|---|---|---|---|---|
| 300 | 400 | 500 | 600 | 700 | 800 | 900 | 1000 | 1100 | 1200 | 1300 | 1400 | 1500 | 1600 | 1700 | 1800 | 1900 | 2000 | |
| 300 | 14 | 15,6 | 17,5 | 19,2 | 21 | 22,7 | 24,5 | 26,2 | 28,1 | 29,7 | 31,6 | 33,3 | 35,1 | 36,8 | 45,4 | 47,4 | 49,1 | 50,8 |
| 400 | 15,5 | 17,5 | 19,6 | 21,6 | 23,8 | 25,8 | 27,9 | 29,9 | 32,1 | 34,1 | 36,2 | 38,2 | 40,4 | 49,5 | 51,5 | 53,9 | 55,9 | 57,9 |
| 500 | 16,9 | 19,4 | 21,9 | 24,3 | 26,8 | 29,1 | 31,6 | 34 | 36,5 | 38,9 | 41,4 | 51,2 | 53,5 | 55,9 | 58,2 | 60,9 | 63,3 | 65,6 |
| 600 | 18,4 | 21,5 | 24,4 | 27,1 | 30,1 | 32,8 | 35,7 | 38,5 | 41,4 | 44,1 | 47 | 57,4 | 60,1 | 62,9 | 65,6 | 68,7 | 71,4 | 74,2 |
| 700 | 19,9 | 23,3 | 26,5 | 29,6 | 32,8 | 35,9 | 39,1 | 42,2 | 45,4 | 48,5 | 51,7 | 62,6 | 65,6 | 68,7 | 71,8 | 75,1 | 78,2 | 81,3 |
| 800 | 21,4 | 25,1 | 28,7 | 32 | 35,6 | 39 | 42,5 | 45,9 | 49,4 | 52,8 | 64,1 | 67,8 | 71,2 | 74,5 | 77,9 | 81,6 | 85 | 88,4 |
| 900 | 22,9 | 26,9 | 30,8 | 34,5 | 38,3 | 42 | 45,9 | 49,6 | 53,5 | 57,2 | 69 | 73 | 76,7 | 80,4 | 84,1 | 88,1 | 91,8 | 95,5 |
| 1000 | 24,4 | 28,7 | 32,9 | 36,9 | 41,1 | 45,1 | 49,3 | 53,3 | 57,5 | 61,5 | 73,8 | 78,2 | 82,2 | 86,2 | 90,2 | 94,6 | 98,6 | 102,6 |
| 1100 | 25,9 | 30,5 | 35 | 39,4 | 43,9 | 48,2 | 52,7 | 57 | 70,1 | 74,4 | 78,7 | 83,4 | 87,7 | 92 | 96,4 | 101 | 105,4 | 109,7 |
| 1200 | 27,4 | 32,3 | 37,2 | 41,8 | 46,6 | 51,3 | 56,1 | 60,7 | 74,3 | 79 | 83,6 | 88,6 | 93,2 | 97,9 | 102,5 | 107,5 | 112,2 | 116,8 |
| 1300 | 28,9 | 34,2 | 39,3 | 44,2 | 49,4 | 54,3 | 59,5 | 64,4 | 78,6 | 83,5 | 88,5 | 93,8 | 98,8 | 103,7 | 108,1 | 114,2 | 118,9 | 123,9 |
| 1400 | 30,4 | 36 | 41,4 | 46,7 | 52,1 | 57,4 | 62,9 | 68,1 | 82,8 | 88,1 | 93,4 | 99 | 104,3 | 109,6 | 114,8 | 120,4 | 125,7 | 131 |
| 1500 | 31,9 | 37,8 | 43,5 | 49,1 | 54,9 | 60,5 | 66,3 | 71,9 | 87,1 | 92,7 | 98,3 | 104,2 | 109,8 | 115,4 | 121 | 126,9 | 132,5 | 138,1 |
| 1600 | 33,4 | 39,6 | 45,7 | 51,6 | 57,7 | 63,6 | 69,7 | 85,4 | 91,3 | 97,2 | 103,2 | 109,4 | 115,3 | 121,2 | 127,1 | 133,4 | 139,3 | — |
| 1700 | 34,8 | 41,4 | 47,8 | 54 | 60,4 | 66,6 | 73 | 89,3 | 95,6 | 101,8 | 108 | 114,6 | 120,8 | 127,1 | 133,3 | 139,9 | 146,1 | — |
| 1800 | 36,3 | 43,2 | 49,9 | 56,5 | 63,2 | 69,7 | 76,4 | 93,3 | 99,8 | 106,4 | 112,9 | 119,8 | 126,3 | 132,9 | 139,5 | 146,3 | 152,9 | — |
| 1900 | 37,8 | 45 | 52 | 58,9 | 65,9 | 83,1 | 90 | 97,2 | 104,1 | 110,9 | 117,8 | 125 | 131,9 | 138,7 | — | — | — | — |
| 2000 | 39,3 | 46,8 | 54,2 | 61,3 | 68,7 | 86,4 | 93,6 | 101,1 | 108,3 | 115,5 | 122,7 | 130,2 | 137,4 | 144,6 | — | — | — | — |
Установка клапанов
Стеновое исполнение

Обозначения на схемах:
1 — корпус клапана;
2 — воздуховод;
3 — огнезащита;
4 — цементно-песчаный раствор;
5 — шахта дымоудаления.
Установка клапана осуществляется в соответствии с требованиями нормативных документов. При горизонтальной ориентации размера В электромагнитный привод должен быть расположен сверху, а электромеханический слева. Зазор между корпусом клапана и строительными конструкциями заполняется цементно-песчаным раствором.

